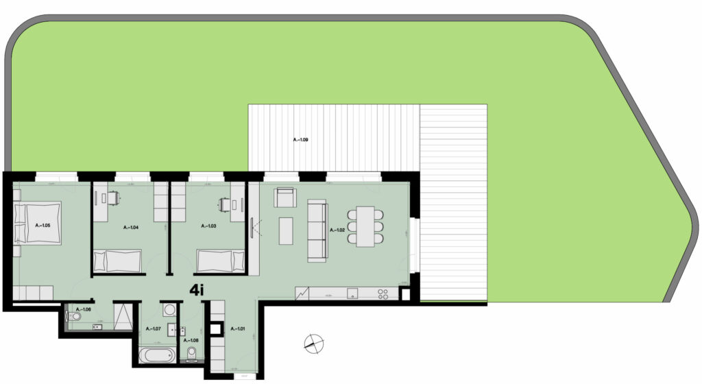
4-izbový byt B.2 A-1

Poschodie -1
Počet izieb 4
Plocha 108,92 m2
Balkón
Terasa 49,17 m2
Predzáhradka 200,00 m2
Plocha spolu 358,09 m2

Cena za byt: 540 000 € s DPH

Vrátane elektricky ovládateľných exteriérových žalúzií na všetkých oknách

Pozrite si štandardy budovy

Budovy budú obklopené veľkorysým zeleným verejným priestorom s detskými ihriskami, ale priestor tu nájdu aj súkromné záhrady. Architekti projektu dbali na funkčné, ale zároveň udržateľné využitie pozemku. Preto mu bude dominovať zeleň a naprojektované je aj riešenie na zadržiavanie dažďovej vody.

Navyše pre nových vlastníkov bytov ponúkame možnosť dokúpiť si praktické doplnky pre ešte vyšší komfort bývania:

  • Cena vonkajšieho parkovacieho miesta: od 18 000 € s DPH

  • Cena pivničnej kobky: od 7 000 € s DPH

Dohodnime si stretnutie

Pokiaľ máte akékoľvek otázky alebo vás zaujal niektorý z ponúkaných bytov, neváhajte nás kontaktovať

Kontaktujeme Vás

BYTOVÉ DOMY B2, B3, C1: Ing. Juraj Liday +421 903 238 231

BYTOVÉ DOMY C2, C3, C4: Ing. Martin Madleňák +421 901 772 772

V prípade záujmu o informácie vyplňte svoje údaje a budeme vás  kontaktovať.